Aviation buildings, or hangars, are designed to store aircrafts.  There are two basic types of hangars: T-Hangars, and Corporate Hangars.

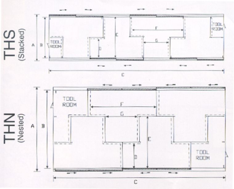
The T-Hangar is designed to store a maximum number of small planes in a relatively small area by dividing the building into “T” shaped units. T-Hangar units are usually leased out individually.  They will typically have either slide doors or bifold doors.

Corporate Hangars more closely resemble a traditional metal building but a large slide door is installed in one endwall.  A corporate hangar is used to store one large aircraft or several small aircrafts.  The corporate hangar does not utilize space as well as the T-Hangar, but it is the preferred building for a company or an individual who owns more than one airplane.

Leave a Reply